LEONARDI IMMOBILIARE ufficio di Perugia, Propone:
Ponte Pattoli – In vendita ampia casa singola con giardino privato
A Ponte Pattoli – Perugia, proponiamo in vendita un’elegante casa singola libera su quattro lati, con ingresso indipendente e giardino privato di circa 400 m².
Una soluzione rara sul mercato, ideale sia per famiglie numerose che per chi desidera un immobile da trasformare in più unità abitative grazie a un progetto di ristrutturazione già approvato.
La proprietà:
L’immobile, di circa 320 m² commerciali, si sviluppa su più livelli e offre spazi generosi e ben suddivisi:
Piano Terra
-
Ingresso
-
Soggiorno
-
Cucina abitabile
-
2 camere matrimoniali
-
2 bagni
-
Ripostigli
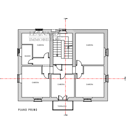
Primo Piano
-
Ampio soggiorno con angolo cottura
-
3 camere matrimoniali
-
2 bagni
-
Balcone
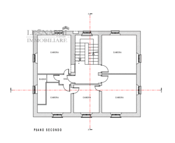
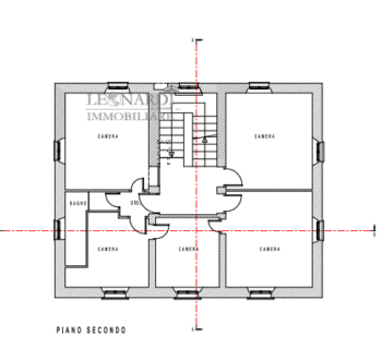
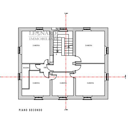
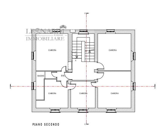
Secondo Piano
-
Doppio soggiorno
-
3 camere
-
Bagno
-
Soffitta
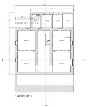
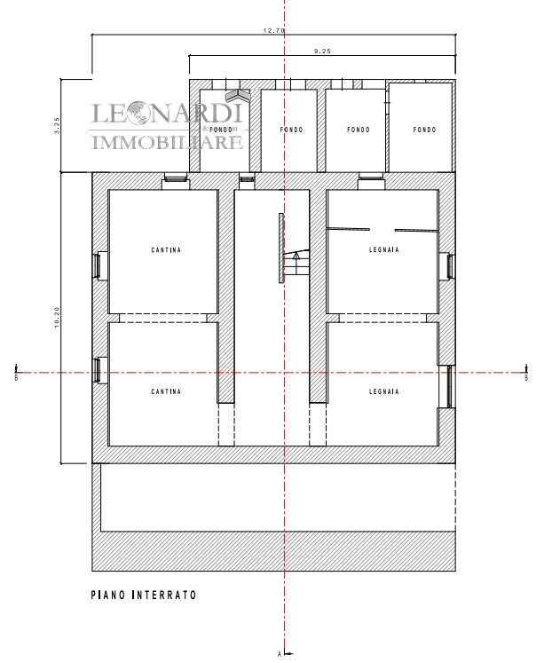
Piano Seminterrato
-
Spazi ideali per garage, fondi, cantina e zone di servizio
Completa la proprietà un’area esterna che garantisce privacy, comfort e possibilità di vivere gli spazi all’aperto.
Punti di forza:
-
Possibilità di ricavare più appartamenti indipendenti
-
Box incluso nel prezzo
-
Immobile da ristrutturare con massima versatilità progettuale
-
Accesso esterno adattato per persone con mobilità ridotta
-
Zona tranquilla e ben servita
-
Costruzione solida (anno 1940)
Caratteristiche tecniche:
-
4 piani complessivi
-
22 locali totali
-
5 bagni
-
Terrazza e balcone
-
Cantina
Per maggiori informazioni o per fissare una visita, non esitare a contattarci.
👉INFORMAZIONE UTILE👈: se interessati ad un immobile chiamare 📞 sempre prima di passare dai punti vendita in modo di trovare sempre un agente 👨💼 a ricevervi.
RAFFAELE 3914748507
DAVID 3397425654























