LEONARDI IMMOBILIARE
Villa unifamiliare di nuova costruzione con giardino e pannelli solari
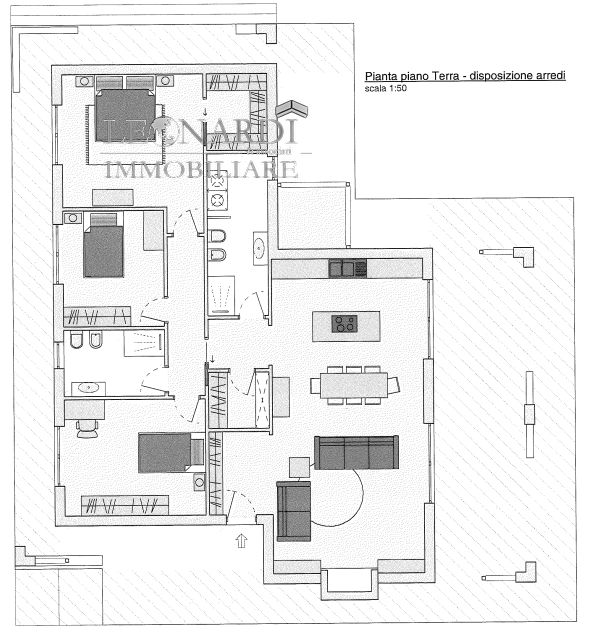
Proponiamo in vendita splendida villa unifamiliare di nuova costruzione di 130 mq, realizzata con materiali moderni e tecnologie all’avanguardia, ideale per chi cerca comfort, efficienza energetica e indipendenza.
L’immobile è composto da:
-
2/3 camere da letto, luminose e ben distribuite
-
Ampio salone con angolo cottura, perfetto per la zona living
-
2 bagni moderni
-
Ripostiglio funzionale
Completa la proprietà un giardino privato di 200 mq, ideale per vivere gli spazi esterni in totale relax, con possibilità di realizzare una piscina.
Dotata di pannelli solari, la villa garantisce elevata efficienza energetica e ridotti consumi, nel rispetto dell’ambiente.
Soluzione ideale per chi desidera una casa nuova, personalizzabile e pronta a offrire il massimo comfort abitativo.
Un’opportunità unica da non perdere!
Per maggiori informazioni e per organizzare una visita, non esitate a contattarci.
www.leonardiimmobiliare.it
-INFORMAZIONE UTILE: se interessati ad un immobile chiamare sempre prima di passare dai punti vendita in modo di trovare sempre un agente a ricevervi.
RAFFAELE 3914748507
DAVID 3397425654







